Size: a a a

2021 February 18

EC

Egor Chistyakov in Ne_znal_talk
Все же читали Вино из одуванчиков и помнят бабушкину кухню там? Вот и у меня пока так
источник

AP

Anthony Prepress in Ne_znal_talk
Люстра говорит, что моя жизнь слишком проста и бессмысленна, и он не будет мне рисовать Live Paint Bucket поверх объектов с клипин-маск
источник

AP

Anthony Prepress in Ne_znal_talk
пусть я потрачу немного времени на ручную разборку картинки :)
источник

AP

Anthony Prepress in Ne_znal_talk
подскажите про листание страниц/артбордов в Люстре
хочу приблизить часть страницы и потом перелистнуться на другой артборд в то же место с тем же зумом -- можно так?
(если это поможет понять, то как Инди с Alt-PageDown)
источник

ma

moody allen in Ne_znal_talk
Anthony Prepress
подскажите про листание страниц/артбордов в Люстре
хочу приблизить часть страницы и потом перелистнуться на другой артборд в то же место с тем же зумом -- можно так?
(если это поможет понять, то как Инди с Alt-PageDown)
Нативно хз, но могу быстро костыль наскриптовать
источник

SO

Sergey Osokin in Ne_znal_talk
Anthony Prepress
подскажите про листание страниц/артбордов в Люстре
хочу приблизить часть страницы и потом перелистнуться на другой артборд в то же место с тем же зумом -- можно так?
(если это поможет понять, то как Инди с Alt-PageDown)
Посмотри в действии вот эти скрипты у Миязавы https://onthehead.com/ais/view001/
источник

ma

moody allen in Ne_znal_talk
Ребят, вот допустим прихожу я в какую-то контору и говорю, что хочу ремонт в квартире сделать. В какой софтине они будут дизайн-проект делать? Что ща стандарт?
источник

ma

moody allen in Ne_znal_talk
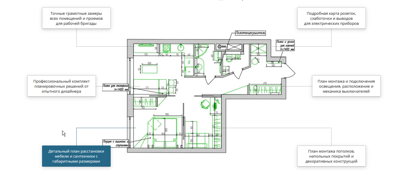
Имею в виду что-то такое
источник

ma

moody allen in Ne_znal_talk
источник

ma

moody allen in Ne_znal_talk
Хотя за визуализацию тоже интересно. Сейчас существуют какие-то специализированные проги или все в максах, маях пилят?
источник

VL

Vladimir Lee in Ne_znal_talk
Автокад, разве нет?
источник

VL

Vladimir Lee in Ne_znal_talk
Максом визуализируют. Но это я про наших локальных говорю. Как там в России — хз
источник

ma

moody allen in Ne_znal_talk
Vladimir Lee
Автокад, разве нет?
Ну я догадывался, что это что-то от автостола будет, но у них же там целый выводок. Разве нет чего-то более специализированного? Автокад как будто убер-комбайн)
источник

ma

moody allen in Ne_znal_talk
Вот уж правда, нафига шифровать бесплатный скрипт на десять строк)
источник

SO

Sergey Osokin in Ne_znal_talk
moody allen
Вот уж правда, нафига шифровать бесплатный скрипт на десять строк)
о чем и дискуссия была в кодерском чатике =) Но право авторов, чо уж
источник

SO

Sergey Osokin in Ne_znal_talk
Не хотят, чтобы в мире общий уровень скриптописания под Илл повышался, благодаря изучению алгоритмов, лайфхаков в коде друг у друга ))
источник

AP

Anthony Prepress in Ne_znal_talk
++ о, круто работает, как назначить на Альт_Пейдждаун?
источник

N

Nano.Karmabot.chat in Ne_znal_talk
Marvellous! sergosokin got +1 from AnthonyPrepress. 218 karma in total.
источник

SO

Sergey Osokin in Ne_znal_talk
Anthony Prepress
++ о, круто работает, как назначить на Альт_Пейдждаун?
Вопрос к адептам автохоток на Виндовс )
источник

AP

Anthony Prepress in Ne_znal_talk
то есть нативно никак?
источник